La Ciudad Autónoma de Buenos Aires se encuentra ante un conflicto judicial de envergadura que pone en tensión los modelos de desarrollo urbano, la preservación del patrimonio ambiental y las obligaciones estatales frente a la crisis climática. La Asociación Civil Observatorio del Derecho a la Ciudad (ODC), con la representación letrada de Jonatan Emanuel Baldiviezo, Alejandra Braga Méndez y María Victoria Agnes, ha interpuesto una Acción de Amparo Colectivo Ambiental y Urbanístico contra el Gobierno de la Ciudad Autónoma de Buenos Aires (GCBA), la Corporación Buenos Aires Sur S.E. y su Fideicomiso.
Esta acción judicial busca frenar la subasta pública de un bloque de tierras de aproximadamente ocho hectáreas pertenecientes al histórico Parque de la Ciudad, programada para el 18 de diciembre de 2025.
El núcleo de la demanda radica en la impugnación de la constitucionalidad de la Ley N° 5.704, normativa que en el año 2016 rezonificó y desafectó del dominio público estas tierras para permitir su venta.
La causa tramita en los autos caratulados 2ASOCIACION CIVIL OBSERVATORIO DEL DERECHO A LA CIUDAD Y OTROS CONTRA GCBA Y OTROS SOBRE AMPARO - AMBIENTAL”, Expte. N° 308677/2025-0.
LA SUBASTA PÚBLICA DEL 18 DE DICIEMBRE
El conflicto actual se precipita a raíz de la decisión administrativa de ejecutar la venta de un macizo de tierras públicas de gran escala. Mediante el Acta de Directorio Número Ocho del 22 de julio de 2025 y la consiguiente resolución del Fideicomiso Corporación Buenos Aires Sur S.E., se ha dispuesto la enajenación de seis manzanas contiguas ubicadas en el barrio de Villa Soldati.
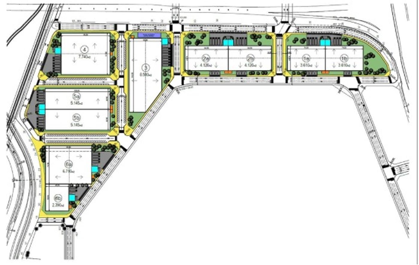
Los predios sujetos a subasta se encuentran catastralmente identificados como Circunscripción 1, Sección 58, Manzanas 79B, 79C, 79D, 79E, 79F y 79G. Estos terrenos, que suman una superficie total aproximada de 78.862,20 metros cuadrados (7,88 hectáreas), formaban parte integral del diseño original del Parque de la Ciudad y su suelo se encuentra actualmente vegetado y libre de construcciones, cumpliendo funciones de absorción hídrica.


La modalidad de venta establecida es "en bloque", lo que implica la transferencia de la totalidad de las seis manzanas en un solo acto, y "con cargo", sujetando al comprador a determinadas obligaciones de desarrollo. El precio base fijado para la compulsa es de USD 1.900.000 (un millón novecientos mil dólares estadounidenses).
Esta valuación base ha generado controversia técnica y política. Al dividir el precio base por la superficie total, el valor del metro cuadrado de suelo urbano en esta operación se sitúa en torno a los 24 dólares estadounidenses. Esta cifra contrasta notablemente con los valores de mercado del suelo en la Ciudad de Buenos Aires, incluso considerando las deprimidas valuaciones de la zona sur, lo que alimenta los argumentos sobre la "descapitalización" del Estado y la transferencia de renta pública a actores privados a precios viles.
Tabla 1: Detalle de los Inmuebles a Subastar (Datos del Pliego)
|
Nomenclatura Catastral |
Superficie (m²) |
Zonificación Actual (Ley 5.704) |
Zonificación Anterior |
Uso Propuesto en Pliego |
Precio Base (Bloque) |
|
Manzana 79B |
13.649,04 |
U57 (Equipamiento Lacarra) |
E4-51 (Parque Público) |
Equipamiento/Mixto |
Incluido en Total |
|
Manzana 79C |
14.295,24 |
U57 (Equipamiento Lacarra) |
E4-51 (Parque Público) |
Equipamiento/Mixto |
Incluido en Total |
|
Manzana 79D |
11.235,85 |
U57 (Equipamiento Lacarra) |
E4-51 (Parque Público) |
Equipamiento/Mixto |
Incluido en Total |
|
Manzana 79E |
11.986,96 |
U57 (Equipamiento Lacarra) |
E4-51 (Parque Público) |
Equipamiento/Mixto |
Incluido en Total |
|
Manzana 79F |
14.020,26 |
U57 (Equipamiento Lacarra) |
E4-51 (Parque Público) |
Equipamiento/Mixto |
Incluido en Total |
|
Manzana 79G |
13.674,85 |
U57 (Equipamiento Lacarra) |
E4-51 (Parque Público) |
Equipamiento/Mixto |
Incluido en Total |
|
TOTAL |
78.862,20 |
Área de Equipamiento Lacarra |
Parque de la Ciudad |
Urbanización |
USD 1.900.000 |
Fuente: Elaboración propia en base a los Pliegos de Subasta.

La Medida Cautelar Solicitada
Ante la inminencia de la fecha de subasta (18 de diciembre de 2025), la demanda incluye un pedido de medida cautelar de no innovar. La estrategia procesal se basa en el peligro en la demora (periculum in mora): si la subasta se perfecciona y se transfieren los títulos de propiedad a terceros adquirentes de buena fe, la situación se tornaría jurídicamente irreversible.
El ODC argumenta que, una vez consolidada la venta, la recuperación del predio para el dominio público requeriría procesos de expropiación e indemnizaciones multimillonarias que gravarían injustamente al erario público, transformando la sentencia final del amparo en una decisión abstracta o de cumplimiento imposible. Por ello, se solicita al tribunal la suspensión inmediata de los efectos de la Resolución Resol-2025-334 y la prohibición de cualquier acto de disposición sobre los inmuebles hasta que se resuelva la cuestión de fondo sobre la constitucionalidad de la Ley N° 5.704.1
ANTECEDENTES HISTÓRICOS: DE LA UTOPÍA AL DESMEMBRAMIENTO
Para comprender la magnitud del reclamo, es imperativo analizar la trayectoria histórica del territorio en disputa. El "Parque de la Ciudad" no es un remanente urbano accidental, sino el resultado de sucesivas intervenciones estatales de gran escala que reflejan los cambios en la política urbana argentina de los últimos sesenta años.
3.1. El Proyecto "Parque Almirante Brown" y la Dictadura Militar
El origen de estos terrenos se remonta al ambicioso proyecto del "Parque Almirante Brown" (PAB), concebido a inicios de la década de 1960. Este plan maestro abarcaba originalmente 1.434 hectáreas en el sur de la ciudad (Villa Soldati, Villa Lugano), una superficie equivalente al 7% de la capital, destinada a ser "recuperada" de su condición de bañados inundables.

Sin embargo, la ejecución más agresiva del proyecto ocurrió durante la última dictadura cívico-militar (1976-1983), bajo la intendencia del Brigadier Osvaldo Cacciatore. La intervención se caracterizó por una lógica de "tabula rasa": se procedió a la eliminación del basural a cielo abierto existente y a la erradicación violenta de las villas de emergencia, expulsando a la población residente bajo premisas higienistas y de "renovación estética". El objetivo declarado era transformar una zona deprimida en un polo de desarrollo moderno, reemplazando —en palabras de los funcionarios de la época— a los "cirujas" por "golfistas".
En este contexto, se licitó la construcción del Parque Zoofitogeográfico y el Parque de Diversiones, adjudicado al consorcio "Interama", integrado por empresas constructoras y figuras vinculadas a la fuerza aérea. La concesión estuvo marcada por irregularidades desde su inicio: se invirtió el orden de prioridades, construyéndose primero el parque de diversiones y abandonándose el zoológico, y el Estado otorgó avales millonarios que luego debió afrontar.
Tras la quiebra de la concesionaria y la recuperación del predio por parte de la democracia en 1983 (bajo la intendencia de Julio Saguier), el parque fue estatizado y rebautizado como "Parque de la Ciudad". Desde entonces, el predio ha sufrido un proceso de declive en su infraestructura mecánica, culminando con la clausura definitiva de los juegos en 2008 por decisión del gobierno de Mauricio Macri.
Paradójicamente, el abandono de la actividad recreativa mecánica permitió un proceso de "renaturalización pasiva". La ausencia de ruido y pisoteo masivo favoreció el retorno de la biodiversidad y la regeneración de la cubierta vegetal, consolidando al predio como un bosque urbano mixto de alto valor ecológico.
No obstante, la política urbana reciente ha optado por fragmentar esta unidad territorial. La construcción de la Villa Olímpica para los Juegos de la Juventud de 2018 fue el primer gran recorte, desafectando decenas de hectáreas para viviendas. La Ley N° 5.704, sancionada en 2016, fue el instrumento jurídico que habilitó no solo las obras olímpicas, sino también la creación de áreas de equipamiento comercial como la que ahora se pretende subastar, bajo el argumento de "integrar" el parque al tejido urbano. Los críticos describen este proceso como una "estrategia del salami", donde el parque público es rebanado progresivamente para alimentar el mercado inmobiliario, perdiendo su integridad y función sistémica.

FUNDAMENTOS JURÍDICOS DE LA DEMANDA: LA ARQUITECTURA DE LA ILEGALIDAD
El argumento central de la nulidad se basa en la jerarquía normativa de la Ciudad de Buenos Aires. El Plan Urbano Ambiental (Ley N° 2.930) constituye la "ley marco" a la que debe ajustarse toda la normativa urbanística y de obras públicas, según el artículo 29 de la Constitución de la Ciudad.
El PUA establece mandatos claros e imperativos respecto a los espacios verdes:
-
Promover su incremento y recuperación.
-
Mantener la integridad de los parques existentes.
La Ley N° 5.704, al desafectar tierras del distrito "Parque de la Ciudad" para destinarlas a la venta y edificación, contradice frontalmente estos objetivos. La demanda sostiene que una ley ordinaria de zonificación (como la 5.704) no puede modificar los principios de la ley marco (PUA) sin seguir el procedimiento legislativo agravado de "doble lectura" y audiencias públicas obligatorias para la modificación del Plan Urbano Ambiental.
El derecho ambiental moderno se rige por el principio de no regresión, consagrado en el Acuerdo de Escazú (ratificado por Ley N° 27.566) y derivado del principio de progresividad de los Derechos Humanos. Este principio dicta que, una vez alcanzado un cierto nivel de protección ambiental (en este caso, la existencia de un parque público de acceso libre y suelo absorbente), el Estado tiene prohibido retroceder o disminuir esa protección, salvo justificación imperiosa de interés público mayor y compensación adecuada.
La venta de las ocho hectáreas constituye, según la demanda, una medida regresiva injustificada. Se transforma un bien de dominio público (inalienable) en dominio privado; se sustituye suelo verde por suelo constructible; se reduce la superficie de disfrute colectivo. La jurisprudencia citada en la presentación refuerza que el Estado no puede utilizar el patrimonio ambiental como variable de ajuste financiero, violando los estándares de protección ya adquiridos por la sociedad.
Uno de los aspectos más novedosos y potentes de la demanda es la invocación del "Derecho Climático" como límite a la potestad de planificación urbana. Argentina cuenta con la Ley de Presupuestos Mínimos de Adaptación y Mitigación al Cambio Climático Global (Ley N° 27.520), que es de orden público y rige en todo el territorio nacional.
Esta ley obliga a las jurisdicciones a elaborar y cumplir "Planes de Respuesta". La Ciudad de Buenos Aires cumplió formalmente con este mandato al aprobar su Plan de Acción Climática 2050 (PAC 2050). La demanda argumenta que el PAC 2050 no es un documento indicativo, sino una norma jurídica de cumplimiento obligatorio (Plan de Detalle).
El PAC 2050 establece como estrategias centrales de adaptación:
-
El incremento de la cobertura arbórea y de los espacios verdes públicos para mitigar la isla de calor.
-
La utilización de "soluciones basadas en la naturaleza" y la infraestructura verde para la gestión del riesgo hídrico.
La contradicción es flagrante: mientras el Plan Climático oficial ordena proteger y aumentar el verde para adaptar la ciudad al calentamiento global, el área de desarrollo urbano ejecuta la venta y cementación de ese mismo verde. La demanda postula que esta incoherencia no es solo política, sino una causal de nulidad jurídica: el acto de venta tiene un objeto ilícito porque impide el cumplimiento de una obligación legal superior (la adaptación climática).
IMPACTO AMBIENTAL Y RIESGOS EN LA COMUNA 8
Más allá de la discusión abstracta sobre normas, la demanda fundamenta el perjuicio en datos técnicos concretos sobre la vulnerabilidad ambiental de la Comuna 8, una de las zonas más castigadas de la ciudad.
El Parque de la Ciudad se asienta sobre la cuenca del Arroyo Cildáñez. Históricamente, esta es una cuenca de llanura con graves problemas de drenaje. Las obras hidráulicas realizadas (aliviadores, entubamientos) han mitigado parcialmente el riesgo, pero la zona sigue siendo vulnerable ante eventos de precipitación extrema, que el propio PAC 2050 pronostica como más frecuentes e intensos.
El suelo del parque funciona actualmente como una "esponja urbana": sus 78.000 metros cuadrados de tierra vegetada absorben el agua de lluvia, retardando su llegada a la red pluvial y evitando el colapso del sistema.
El impacto de la venta: La urbanización de estas manzanas, aunque mantenga un porcentaje de "centro de manzana libre", implica inevitablemente la impermeabilización de grandes superficies (techos, calles internas, veredas). Esto aumentará el coeficiente de escorrentía, derivando mayores volúmenes de agua hacia los barrios aledaños, como la Villa 20 y el Barrio Papa Francisco, que ya sufren déficit de infraestructura. La demanda alega que esto viola el principio preventivo: el Estado conoce el riesgo y, sin embargo, toma medidas que lo agravan.
La "Isla de Calor Urbana" es el fenómeno por el cual las áreas construidas registran temperaturas significativamente mayores que las áreas verdes circundantes, debido a la absorción de calor por el asfalto y el hormigón. Estudios de la Facultad de Agronomía de la UBA citados en la demanda demuestran que la zona sur de la ciudad, si bien tiene grandes parques, presenta diferencias térmicas extremas en sus áreas consolidadas.
La eliminación de la biomasa forestal existente en las manzanas a subastar (árboles añosos, suelo cubierto de césped) suprimirá el servicio ecosistémico de regulación térmica que estos prestan. En un contexto de olas de calor cada vez más largas y peligrosas para la salud humana (especialmente niños y ancianos), la pérdida de este "aire acondicionado natural" representa una amenaza directa a la salud pública de la Comuna 8.
DIMENSIÓN SOCIAL Y JUSTICIA DISTRIBUTIVA
La demanda del ODC introduce también una perspectiva de justicia social y derechos humanos. La Comuna 8 presenta los indicadores socioeconómicos más críticos de la ciudad: menores ingresos per cápita, mayor hacinamiento y déficit habitacional.20
El principio de justicia ambiental exige que las cargas y beneficios del desarrollo urbano se distribuyan equitativamente. En este caso, la demanda denuncia una distribución regresiva:
-
Beneficios: La renta de la tierra y la ganancia inmobiliaria serán capturadas por el Estado (a través de la venta) y por los desarrolladores privados que adquieran los lotes.
-
Cargas: Los impactos negativos (más calor, más riesgo de inundación, pérdida de espacio recreativo gratuito) recaen sobre los vecinos de Villa Soldati y Lugano, quienes no reciben compensación alguna.
La Ing. María Eva Koutsovitis, de El Movimiento La Ciudad Somos Quienes La Habitamos, manifestó: “Lo que está en juego el próximo 18 de diciembre no son solo ocho hectáreas de tierra en Villa Soldati, sino la vigencia de la planificación ambiental frente a la lógica del mercado inmobiliario. Si la justicia hace lugar a la medida cautelar y frena la subasta, sentará un precedente clave sobre el carácter vinculante de los planes climáticos y la protección de los bienes comunes. Si, por el contrario, la venta se concreta, se habrá consolidado un paso más en la fragmentación del Parque de la Ciudad, hipotecando la resiliencia ambiental del sur porteño en un escenario de crisis climática acelerada”.
El Abog. Jonatan Baldiviezo, fundador del Observatorio del Derecho a la Ciudad, expresó: “La ciudadanía, a través de estas herramientas legales, interpela al GCBA sobre su rol de garante del bienestar futuro, exigiendo que la "Ciudad Verde" sea una realidad tangible en el territorio y no solo un eslogan de marketing internacional”.
Contacto: Whatsapp 15 3266-7008